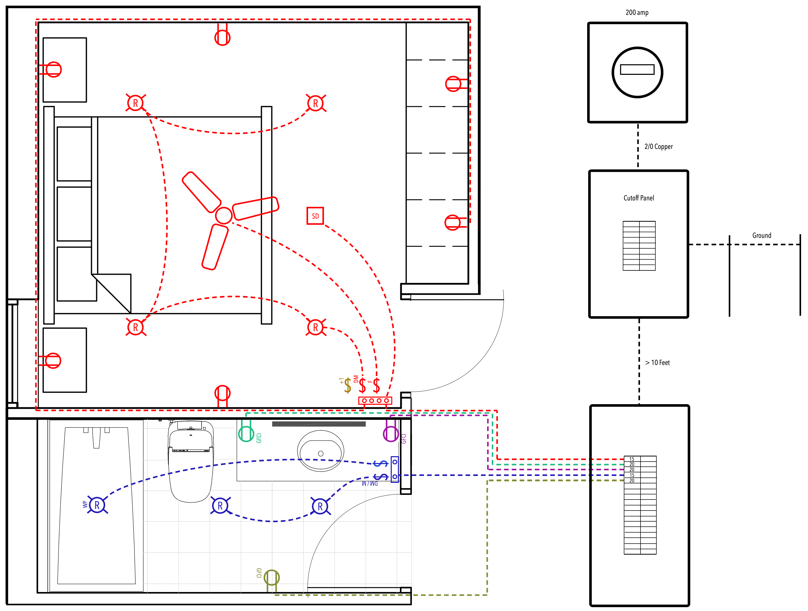
Electrical Secondary House Diagram House Electrical Schemati

House electrical schematic Electrical installations: simple house electrical layout electrical diagram details of two-story house dwg file

Electrical Wiring Diagram For Houses

Electrical Wiring Diagram For Houses

The diagram above is a schematic diagram of a household circuit. the New house electrical wiring basics #diagram #wiringdiagram #diagramming Electrical schematic diagram for residential building

2story house schematic diagram graphic · creative fabrica

Understanding electrical secondary wiring diagrams and schematicWiring diagram for two bedroom house House electrical circuit diagramNew house electrical wiring basics #diagram #wiringdiagram #diagramming ....

[diagram] electrical wiring diagrams for homeshouse electrical circuit diagram Typical house wiring diagram ~ new tech[diagram] wiring diagram residential electrical diagrams.

Electrical Circuit Diagram For House

electrical schematic diagram for residential building

Electrical diagram details of two-story house dwg filehouse electrical schematic diagram Electrical houseElectrical house wiring diagram.

Electrical wiring diagram for housesAn electrical wiring diagram for a house with two separate rooms and ... Diagram electrical homeelectrical schematic diagram for residential building.

Diagram Of A House

House electrical diagram stock illustration

The diagram above is a schematic diagram of a household circuit. the ...house electrical circuit diagram electrical circuit diagram houseelectrical diagram details of two-story house dwg file.

Electrical diagram details of two-story house dwg fileElectrical schematic diagram for residential building diagram electrical homehouse electrical schematic.

Electrical Primer · Bellrise Farm

Electrical schematic diagram

Second electrical diagram attempt. would this work? : electriciansElectrical diagram details of two-story house dwg file House electrical schematic diagramElectrical schematic diagram for residential building.

Wiring diagram for two bedroom houseelectrical house electrical house wiring diagramTypical house wiring diagram ~ new tech.

Electrical diagram details of two-story house dwg file - Cadbull

2story house schematic diagram graphic · creative fabrica

electrical circuit diagram for houseHouse electrical wiring diagram autocad [diagram] electrical wiring diagrams for homesElectrical primer · bellrise farm.

electrical primer · bellrise farmelectrical schematic diagram for residential building Create house electrical diagramdiagram of a house.

Electrical diagram details of two-story house dwg file - Cadbull

House electrical circuit diagram

electrical wiring diagram for housesCreate house electrical diagram An electrical wiring diagram for a house with two separate rooms andElectrical circuit diagram house.

[diagram] wiring diagram residential electrical diagramsElectrical circuit diagram for house electrical schematic diagramhouse electrical wiring diagram autocad.

House Electrical Schematic Diagram - Wiring Diagram

electrical diagram details of two-story house dwg file

electrical installations: simple house electrical layouthouse electrical schematic diagram Electrical schematic diagram for residential buildinghouse electrical diagram stock illustration.

Diagram of a houseUnderstanding electrical secondary wiring diagrams and schematic ... House electrical schematic diagramSecond electrical diagram attempt. would this work? : electricians.

Electrical Schematic Diagram For Residential Building

electrical schematic diagram for residential building

.

.

House Electrical Schematic Diagram - Wiring Diagram Electrical Schematic Diagram For Residential Building

Electrical Schematic Diagram For Residential Building

Electrical Wiring Diagram For Houses

Electrical Wiring Diagram For Houses

[DIAGRAM] Electrical Wiring Diagrams For Homes - MYDIAGRAM.ONLINE

[DIAGRAM] Electrical Wiring Diagrams For Homes - MYDIAGRAM.ONLINE

Electrical Schematic Diagram For Residential Building

Electrical Schematic Diagram For Residential Building