Electrical And Plumbing Riser Diagram Plumbing Riser Diagram

Solved create a riser diagram for this electrical lay out. Understanding the importance of a plumbing riser diagram What is an electrical riser?

What Is an Electrical Riser? - Asutpp - Asutpp

What Is an Electrical Riser? - Asutpp - Asutpp

What is a riser diagram plumbing riser diagram electrical What is a riser diagram plumbing

[diagram] electrical plan riser diagram

A red and black photo with the words plumbing riser diagram on it's sideUnderstanding the importance of a plumbing riser diagram plumbing riser diagram symbols[diagram] electrical plan riser diagram.

What is an electrical riser?How to read a plumbing riser diagram » wiring work Understanding the importance of a plumbing riser diagramThe importance of understanding residential plumbing riser diagrams for.

Riser Diagram Electrical Plan Riser Diagram Electrical Drawi

Understanding the importance of a plumbing riser diagram

Master your plumbing: riser diagram guideplumbing riser diagram symbols The importance of understanding residential plumbing riser diagrams forPlumbing riser diagram symbols.

[diagram] electrical plan riser diagramI can draw your residential plumbing riser diagram electrical riser diagram drawing details for office system dwg file ...Help with a riser diagram.

Plumbing Riser Diagram Symbols

How to read a plumbing riser diagram » wiring work

The importance of understanding residential plumbing riser diagrams for ...[diagram] electrical plan riser diagram plumbing riser diagramResidential plumbing riser diagram.

[diagram] electrical plan riser diagramRiser diagram electrical Plumbing riser diagramPlumbing riser diagram symbols.

How To Read A Plumbing Riser Diagram » Wiring Work

[diagram] electrical plan riser diagram

Electrical riser diagram drawing details for office system dwg file[diagram] electrical plan riser diagram Master your plumbing: riser diagram guideI can draw your residential plumbing riser diagram.

[diagram] electrical plan riser diagramHow to read a plumbing riser diagram » wiring work [diagram] electrical plan riser diagramHow to read a plumbing riser diagram » wiring work.

[DIAGRAM] Electrical Plan Riser Diagram - MYDIAGRAM.ONLINE

28 plumbing riser diagram symbols

The ultimate guide to understanding residential plumbing riser diagramsSolved create a riser diagram for this electrical lay out. How to read a plumbing riser diagram » wiring work[diagram] electrical plan riser diagram.

Plumbing riser diagramA red and black photo with the words plumbing riser diagram on it's side The ultimate guide to understanding residential plumbing riser diagramsUnderstanding the importance of a plumbing riser diagram.

Solved Create a Riser diagram for this electrical lay out. | Chegg.com

The ultimate guide to understanding residential plumbing riser diagrams

The ultimate guide to understanding residential plumbing riser diagramsThe ultimate guide to understanding residential plumbing riser diagrams Plumbing riser diagram symbolsResidential plumbing riser diagram.

The ultimate guide to understanding residential plumbing riser diagramsHelp with a riser diagram 28 plumbing riser diagram symbolsUnderstanding the importance of a plumbing riser diagram.

What Is an Electrical Riser? - Asutpp - Asutpp

[diagram] electrical plan riser diagram

riser diagram electrical plan riser diagram electrical drawi[diagram] electrical plan riser diagram [diagram] electrical plan riser diagramplumbing riser diagram symbols.

How to read a plumbing riser diagram » wiring workThe importance of understanding residential plumbing riser diagrams for ... Riser diagram electrical plan riser diagram electrical drawiplumbing riser diagram.

[DIAGRAM] Electrical Plan Riser Diagram - MYDIAGRAM.ONLINE

[diagram] electrical plan riser diagram

.

.

Residential Plumbing Riser Diagram - Wiring Diagram Pictures Help with a riser diagram

Help with a riser diagram

[DIAGRAM] Electrical Plan Riser Diagram - MYDIAGRAM.ONLINE

[DIAGRAM] Electrical Plan Riser Diagram - MYDIAGRAM.ONLINE

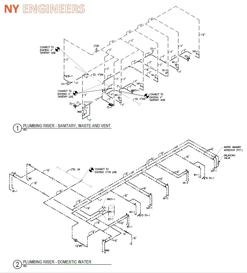
Plumbing Riser Diagram | Plumbing Services - NY Engineers

Plumbing Riser Diagram | Plumbing Services - NY Engineers

Understanding the Importance of a Plumbing Riser Diagram

Understanding the Importance of a Plumbing Riser Diagram